Střechy
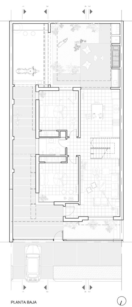
Projekt funguje především na střechách. V původním domě lze číst tři pásy kolmo k ulici, zleva doprava, jeden pro boční chodbu nebo garáž, druhý pro soukromý prostor domu a nakonec veřejný prostor domu. Projekt tuto konfiguraci koncepčně zachovává, ale operuje s demontáží jeho sedlových střech, aby provedl výměnu materiálu a vytvořil formální změny, které nám umožní reagovat na prostory nového zadání. V soukromém pásu je ponechána připomínka původní střechy, která je dostavěna a dává vzniknout rozšířenému apartmánu. Ve veřejném pásu je mezi stávající střechy vestavěn světlík, který řeší jak vertikální cirkulaci, tak vstup osvětlení a větrání domu. V posledním pásu, garážové chodbě, je provozován přidáním odlehčené střechy, která řeší přístup do domu i uskladnění vozidel.
Zadní dvorek
Na spodní části pozemku byl stávající dvorek upravován tak, že jsme pracovali na zrušení hranic interiéru a exteriéru, specifický design oplocení, které jej obklopuje, nám umožnil přistoupit k této konfiguraci. Na jedné straně se díky průhlednosti posuvného okna kuchyně a prodloužení jejího obslužného baru do exteriéru vyřešilo umístění grilu, kotle, prádelny atd. Tento bar lze zcela otevřít nebo zcela zavřít v závislosti na způsobu použití. Na druhé straně kovový závěs motocyklové dílny i posuvné okno kuchyně dotvářejí integraci těchto dvou prostor do dvora a maximalizují jeho užitnou plochu.
Opláštění
Při hledání kontrastu s předlohou byly opláštění zhmotněny v šedém sinusoidním plechu, jejich pohyblivé stěny umožňují dům zcela uzavřít s cílem zcela regulovat světlo a vizuální vjemy, a to jak v prostorách pro užívání, tak v servisních a skladovacích prostorách.
O projektu
Název projektu: Vivienda SyS en La Lucila
Architektonická kancelář: DRM estudio + RA-ARQ
Lokalita: La Lucila, Vicente López, Argentina
Fotografie: Gonzalo Viramonte
Hlavní architekt: Raúl Allegrotti. Luciano Dimaio, Nicolás Rocca, Esteban Muerza
Tým projektantů: Noelia Belén Sera, Ramiro Barraza, Augusto Latzke Blake, Ignacio Llaneza Sofia Prytoluk, Giuliana Scatuerchio, Lautaro Egui
Design interiéru: Sol Giannini
Zastavěná plocha: 35 m² nuevos, 110 m² reformados
Rok dokončení: 2021
Stavební inženýr: Martin Invernizzi
Zákazník: Sol a Seba
Ve spolupráci s Liliana Alvarez, Amazing Architectures [online] @2024. Dostupné z https://amazingarchitecture.com/houses/vivienda-sys-in-la-lucila-argentina-by-drm-estudio-ra-arq































































