Tan Yamanouchi & AWGL: Přehodnocení domova očima klientů, kteří nemluví lidskou řečí.
Projekt plánovaný jako rezidence a ateliér jejího architekta se nachází v Kamakuře, městě plném bohaté historie a svěží zeleně, vzdáleném asi hodinu cesty od centra Tokia. V domě žije třicetiletý pár se dvěma kočkami.
Pro kočky je dům celým jejich světem. S přáním naučit se navrhovat dům z pohledu našich nejdražších kočičích miláčků jsme se rozhodli považovat naše dvě kočky za "dva klienty". Protože jsme s nimi žili deset let, vycházeli jsme při navrhování z jejich "naslouchání", ačkoli nemluví lidskými slovy.
Požadavky koček by se daly zhruba rozdělit do tří kategorií. První z nich byla možnost zvolit si "preferovanou úroveň teploty" v kterýkoli den a hodinu. Jelikož jsou schopny vnímat teplotní úrovně podle nepatrných výškových rozdílů, které my lidé nedokážeme vnímat, rády se pohybují a vybírají si své preferované místo. Druhým požadavkem bylo, aby mohli být ve stejné místnosti jako členové jejich rodiny, ale ne příliš blízko. Rádi tráví čas v blízkosti svých spolubydlících a zároveň se trochu schovávají nebo si udržují odstup. Třetím požadavkem bylo mít na výběr z více míst, kde by se mohli cítit bezpečně. Nejraději se impulzivně přesouvají z jednoho pohodlného prostoru do druhého (který má každá kočka svůj vlastní) podle toho, jak přicházejí a odcházejí roční období.
Proto jsme se rozhodli navrhnout bydlení jako jeden velký kočičí strom.
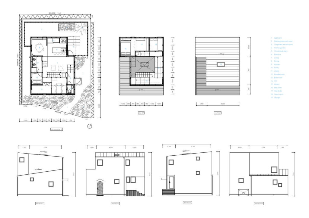
Celý dům jsme pojali jako velké schodiště a do jeho středu jsme umístili atrium s horním světlem, které jsme obklopili točitými schody. Přirozené světlo pronikající světlíkovým oknem osvětluje každý schod karakoly jeden po druhém po celý den. Stupně jsou navrženy na základě tělesných rozměrů našich koček, což vedlo k tomu, že mají 23 různých úrovní podlaží. Celý dům je tak rozdělen do jemných pruhů teplotních vrstev, mezi kterými naši kočičí klienti tráví celý den na cestách. Točité schodiště, obtočené kolem atria se střešním oknem, bylo navrženo tak, aby obyvatelům umožnilo rozhlédnout se po celém domě odkudkoli, aniž by jim bránilo ve výhledu. Standardní rozměr běhu každého schodu je velkoryse nastaven na 900 milimetrů, aby se kočky mohly schovávat před lidmi dole, udržovat si určitý odstup od ostatních, nebo dokonce klidně spát.
Schodiště je konzolou inspirovanou tamasudare, zástěnou z volně spletených bambusových tyčí pro tradiční japonské pouliční představení, při němž ji účinkující kroutí, skládají a roztahují do různých tvarů. Konstrukce je odhalená, aby zdůraznila otevřený stropní prostor. Jako reakce na vysoce vlhké prostředí Kamakury bylo rozumným řešením stroze navržené rozdělení na dvě úrovně. Standardní úroveň podlahy je posazena jeden metr nad úroveň terénu, čímž vzniká nárazníkový prostor mezi základem voru a podlahou, kam je přiváděn venkovní vzduch a kde jsou položeny teplovodní trubky pro podlahové vytápění. Vyrovnávací prostor jsme navrhli pro regulaci teploty a vlhkosti.
V každém rohu domu je umístěna ložnice, pokoj pro hosty, studio, kuchyň, jídelna a koupelna, kde si naši klienti mohou impulzivně najít pohodlné místo. Jelikož se jedná o architektonický ateliér stejně jako o domov, nevyhnutelně se zde vyskytují stálí hosté. Když máme nečekanou návštěvu, každá místnost funguje také jako úkryt pro kočky. Návrh zábradlí realizovaný v atriu z důvodu prevence pádu byl inspirován výhledem na hory Kamakury. Křehké zařízení z nerezové oceli bylo vyrobeno zručnými železáři.
Na stěně postavené podél točitých schodů jsme navrhli knihovnu v konzolové konstrukci, která proměnila schodiště z pouhého průchodu na rozdělenou knihovnu. Pro kočky schody fungují jako útulný pelíšek, zatímco pro nás lidi se stávají klenbou na knihy s vhodnými výškovými rozdíly, aby si mohly kamkoli sednout. Část kruhových schodů se směrem dozadu půlí, čímž na konci dosahuje okna realizovaného v úrovni očí koček, a závěrečné stoupání schodů je vysoké jako lidská židle, aby jim poskytlo prostor podobný verandě. Projekt je navržen tak, aby měl fyzický příběh, který je zprostředkován ve všech plánech a řezech.
Dále jsme reagovali na malebný výhled na Kamakuru prostřednictvím krajinářského designu a vnější formy architektury. Návrh zahrady je rozdělen zhruba do dvou zón. Jednou z nich je přístupová zóna, která vede ke vstupu a zahradě směřující k přední cestě. Druhou je Terasová zóna, která zahrnuje dřevěné palubní schody a kuchyňskou zahradu, obklopenou 1,8 metru vysokou zdí na zadní straně budovy.
V přístupové zóně je vysázeno přibližně 80 druhů rostlin. Kombinovali jsme a upravovali mnoho různých barev, abychom důkladně navrhli barevnou paletu. Vzhledem k tomu, jak je místo přírodně bohaté, jsme záměrně snížili počet druhů z původní flóry a místo toho jsme se snažili výběrem rostlin dodat krajině akcent. Od dokončení se denně objevují návštěvníci ze sousedství a my věříme, že se nám podařilo navrhnout příjemné schéma výsadby. V terasové zóně se nachází přibližně 20 druhů jedlých bylin. Flexibilní venkovní prostor pokrytý voňavými dřevěnými štěpkami nabízí také místo k posezení na schodech a dokonce i k jídlu.
Tvar tohoto domu tvoří dva svazky ve tvaru písmene L, každý s pultovou střechou o různých úhlech. Propojením obou objemů jsme navrhli základní tvar, který zjednodušuje stavbu a zapadá do hor Kamakury, ale zároveň se vyhýbá tomu, aby to byl dům, který jsme už všichni viděli.
Jsme také přesvědčeni, že kočky vyhlížející z okna jsou pohledem, který zlepšuje okolní krajinu. Pečlivě jsme navrhli umístění a výšku oken tak, aby kolemjdoucí a návštěvníci mohli ocenit roztomilost koček jako součást architektonického exteriéru a scenérie.
V Japonsku je desetkrát více domácích koček než novorozenců. Celkový počet domácích mazlíčků převyšuje i počet dětí. Japonsko je navíc jednou z nejrychleji stárnoucích zemí, kde roste zájem o terapii zvířaty. Naším cílem bylo proto seriózně zvážit život s kočkami z pohledu architekta.
Pro kočky je dům celým jejich světem. Chtěli jsme se dozvědět, jak navrhovat domov z kočičí perspektivy. Při navrhování jsme vycházeli z toho, co jsme získali během deseti let života s nimi. Tím, že jsme se řídili nejen kočičími slovy, ale i lidskými, jsme se snažili navrhnout architektonický přístup, který zahrnuje a mísí slova koček i lidí.
Text Tan Yamanouchi, Architect
O projektu
Název projektu: Dům na stromě pro kočky
Architektonická kancelář: Tan Yamanouchi & AWGL
Umístění: Kamakura, Japonsko
Fotografie: Lamberto Rubino
Hlavní architekt: Architekt: Tan Yamanouchi
Spolupráce při dokončovacích pracích: architekt Makoto Kojima, Riki Matsui. Výsadba: SOLSO / Hidenori Juna. Dřevěná paluba, plot: Iroha Zoen / Masashi Hisanaga, Mutsumi Hisanaga
Zastavěná plocha: 94.19 m²
Plocha pozemku: 182.04 m²
Rok návrhu: 2021 - červenec 2022
Rok dokončení: 2023
Stavební inženýr: Katsuhiko Yamawaki Architectural Engineering Design, Katsuhiko Yamawaki, Yumena Hirata
Konstrukce: Satoshi Nakazato, Yuta Ogura
Materiál: Dřevěná rámová metoda (tradiční japonský stavební modul), betonový základ z rohoží
Naser Nader Ibrahim, Amazing Architectures [online] @2023. Dostupné z: https://amazingarchitecture.com/houses/a-cat-tree-house-kamakura-japan-by-tan-yamanouchi-awgl







































