Kirsten Johnstone Architecture: V tomto nově postaveném domě v Blackburnu jsou hrdiny designu pálená hlína, beton a dřevo. Pozemek představoval zajímavou konstrukční výzvu vzhledem ke své poloze v rámci významného krajinného překryvu v jedinečné městské čtvrti Melbourne.
Naše reakce byla vedena důrazem na rodinné bydlení a použití udržitelných materiálů. V celém domě bylo použito australské dřevo, zatímco stěny z pálené hlíny tvoří hluboké odkryvy, které vytvářejí chráněné vnitřní obytné prostory, aniž by byl ohrožen přístup k přirozenému světlu. Tyto stěny poskytují další ochranu před západním sluncem díky přirozeným tepelněhmotnostním vlastnostem pálené hlíny spolu s deskou z páleného betonu.
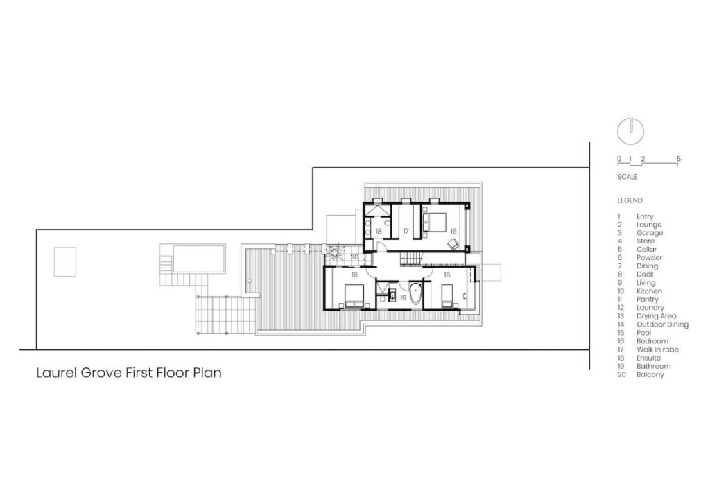
Detaily, jako jsou skryté posuvné obložkové dveře mezi chodbou a jídelnou, vypovídají o promyšleně navrženém přechodu mezi prostory, včetně zvýrazněných prvků stropu z dřevěných latí, které se rozšiřují a zavíjejí a tvoří stínění balkonu a otevřené stínění dřevěného zábradlí od podlahy ke stropu lemující schodiště.
V patře jsou velkorysá okna, která rámují výhled na hojně rostoucí gumovníky v přilehlé oblasti, a plyšový vlněný koberec pomáhá pohlcovat zvuk a zajišťuje soukromí.
Dům je celistvou odpovědí na toto jedinečné místo, klade důraz na udržitelné a kontext respektující materiály, které si budete moci užívat po mnoho let.
Jaké bylo zadání?
Návrh domu Laurel Grove iniciovali pokrokově smýšlející klienti, kteří toužili žít v domě využívajícím nejlepší principy energeticky úsporného designu. Výsledkem je pevně vyřešený a pečlivě vyladěný půdorys vhodný pro tříčlennou rodinu.
V celém návrhu je zkoumána protikladnost veřejného a soukromého a exponovaného a chráněného. "Tajné" vstupní dveře jsou ukryté, ale zároveň odhalené pod fragmentem tvaru. Velkorysé přední okno si lze vychutnat z vnitřní lavičky. Téměř nepostřehnutelná garážová vrata jsou dále maskována štěrkovou příjezdovou cestou splývající s přilehlou krajinou. Zdánlivě exponované okno přední ložnice poskytuje klidný výhled do korun stromů. Strop jídelny přesahuje ven a sklápí se, aby vytvořil zástěnu balkonu.
Jako oslava okolní krajiny jsou hojně využívány hmatově syrové materiály: robustní stěny z beraněné hlíny, místní dřevo, koberce z vlny, malířsky vypálená betonová deska. Hojně se vyskytují skryté dveře, vyřezávaná madla a nenápadná zákoutí.
V konečném důsledku je Laurel Grove navržen pro rodinný život: praktičnost zůstává na prvním místě, zatímco si lze užívat dovedně členěných klidných a intimních prostor.
Jaké byly hlavní výzvy?
Dům Laurel Grove je postaven na nepravidelném pozemku ve významném krajinném prostoru v jedinečné příměstské čtvrti. Bezprostřední okolí pozemku je ceněno pro svůj keřový krajinný ráz včetně bujných korun stromů a nezpevněných cest bez obrubníků a kanálů. Samotný půdorys domu je v polovině bloku odstupňován, aby vytvořil mnohem užší zadní dvůr, což znamenalo, že dům musel být vpředu široký a vzadu úzký.
K omezením plánování patřily hluboké přední odstupy, které nutily dům ustoupit do pozemku od ulice, a větší než obvyklé boční odstupy. V reakci na záměr a během výstavby jsme museli chránit stromy nacházející se na pozemku, v uliční hraně a na přilehlých pozemcích.
Součástí plánovacího procesu byl požadovaný krajinářský plán, přičemž schválený návrh využíval místní původní výsadbu k obnově biotopu pro místní ptactvo a faunu, která zahrnovala doplňkové materiály. Velkorysé mulčované zahradní záhony, štěrkové cesty a masivní výsadba reagují na potřebu, aby byla značná část pozemku propustná.
V sousedství se nachází památkově chráněný dům, u něhož bylo nutné při návrhu zohlednit, aby nebyl přehlížen nebo negativně ovlivněn návrhem. Místní ekologická skupina složená z aktivních majitelů domů bedlivě sleduje veškeré plánované i probíhající práce.
Jaká byla řešení?
Udržitelnost
Vzhledem k touze po energeticky úsporném designu, který by byl levný na obývání, bylo na počátku projektu přijato důležité rozhodnutí, že střídmá podlahová krytina je pro tento nový dům tou nejlepší ekologickou odpovědí. Je zřejmé, že vyžaduje méně stavebních materiálů, méně dokončovacích prací a vybavení, nemluvě o průběžných nákladech na vytápění a chlazení.
Nutně tak vznikl pevně vyřešený a pracný půdorys. Přední vstup má boční schodiště se svislým dřevěným zábradlím od podlahy ke stropu, které umožňuje prosvětlení a větrání. Skryté dveře na konci vstupu zajišťují tepelné a akustické oddělení zadního otevřeného obytného prostoru vytvořením vzduchové uzávěry.
Hliněná stěna v severozápadním rohu otevřeného obytného prostoru chrání před západním sluncem a poskytuje výjimečnou tepelnou izolaci. Pečlivě promyšlené výklenky a hluboké průhledy umožňují v zimě pronikání slunečních paprsků do betonové desky přízemí a zároveň mírní letní horko.
Australské, a kde to bylo možné, viktoriánské dřevo bylo vybráno z udržitelných zdrojů pro svou krásu a ekologickou důvěryhodnost: Stropní latě z radiálně řezaného dřeva s certifikátem AFS tvoří vnější balkonové zábradlí a palubky z radiálně řezaného dřeva s náhodnou šířkou; masivní vnější dřevěné obklady stěn s certifikátem PEFC. Ty jsou povrchově upraveny ochrannými přípravky na bázi vody s nízkým obsahem těkavých organických látek.
Dům a zahradu zásobuje vodou podzemní nádrž na vodu. Nízkou spotřebu energie podporují energeticky úsporné spotřebiče a světla. Krajinářský design zahrnuje původní rostliny odolné vůči suchu, které podporují biologickou rozmanitost a místní faunu, s omezenou tvrdou dlažbou, aby se maximalizovala propustnost pozemku.
Vytvořená forma
Výsledná forma stavby je navržena tak, aby se do lokality vměstnala jako decentní a skromný doplněk krajiny ulice. Hluboké odhalení, široké niky a střídmé tvary zmenšují měřítko tohoto nového domu. Velké skleněné tabule odrážejí okolní stromy jako křovinatý billabong. Členité surové materiály poskytují hmatatelné spojení s krajinou, přičemž tmavé tóny obložení připomínají místní eukalypty s železnou kůrou.
Vlastnosti designu
Je samozřejmé, že tento dům byl navržen tak, aby byl energeticky účinný a nákladově efektivní pro život tříčlenné rodiny. Zatímco začlenění konstrukčních technik pro zmírnění ztrát tepla ze slunečního záření a stěny z pálené hlíny byly zahrnuty, aby splnily zadání, tyto prvky se nakonec staly oblíbenými designovými prvky domu pro majitele.
Navíc chytrá úložná řešení včetně šachty na prádlo a použití dřeva na podhledu jídelny, které pak tvoří zástěnu balkonu, byly designovými doplňky, které byly nad rámec toho, co klienti očekávali.
Services
5,5kW solární systém s návratem přebytečné elektřiny do sítě.
Hydronické vytápění v podlaze prostřednictvím plynového kotle.
Evakuovaný trubkový teplovodní systém Rinnai Sunmaster s plynovým posilovačem.
Podzemní nádrž na vodu sbírající dešťovou vodu ze střechy pro doplňování vody do bazénu a zásobování zahrady vodou.
O projektu
Název projektu: Laurel Grove
Architektonická kancelář: Kirsten Johnstone Architecture
Umístění: Melbourne, Victoria, Austrálie
Fotografie: Tatjana Plitt
Hlavní architektka: Kirsten Johnstone
Návrh interiéru: Kirsten Johnstone Architecture
Zastavěná plocha: 267 m²
Plocha pozemku: 586 m²
Rok dokončení: 2019
Stavební inženýr: Maurice Farrugia + Associates Pty Ltd.
Konstrukce: CBD Contracting Group Pty Ltd
Materiál: pálená hlína, beton a dřevo
Ve spolupráci s Alfredo Gonzalez, Amazing Architectures [online] @2024. Dostupné z https://amazingarchitecture.com/houses/laurel-grove-melbourne-victoria-australia-by-kirsten-johnstone-architecture




































