y.ad studio: ad.ad: Útočiště v ústraní, zasazené do staleté vesnice, integrované do každodenního života.
Při počátečním průzkumu místa jsem se setkal s některými problémy, jako je nedostupnost přímého příjezdu pro vozidla, nerovný terén, omezený prostor a nepříliš ideální scenérie.
Když jsem však stál na místě, zaujalo mě malebné okolí - šedé dlaždice, bílé zdi a stupňovité štíty. Vzdálený kouř z vaření, zvuky rozhovorů a vůně jídla vytvářely jedinečnou atmosféru. Tento zážitek mě inspiroval k tomu, abych odložil své předsudky a přijal krásu, která je tomuto místu vlastní. Představoval jsem si začlenění budovy do vesnice a vytvoření odlehlého prostoru, který by ladil s okolím a zároveň nabízel ostrý kontrast k okolnímu živému a rozmanitému prostředí.
1. Objevit pořádek v neuspořádaném stavu
Architektonická struktura tradičních čínských vesnic je utvářena neplánovaným přirozeným vývojem a historickými vlivy, což vede k neuspořádanému, ale živému stavu. Výjimkou není ani místo projektu, které má křivolaký a nepravidelný terén.
Zpočátku představoval kompaktní pozemek výzvu, protože se zdálo, že mu chybí "výhled" nebo "prostor" pro stavební blok s nízkou mírou využití. Po pečlivém zvážení se však objevila myšlenka vytvořit introvertní prostor s nádechem čínského zahradního myšlení. Cílem bylo izolovat budovu od okolního prostředí a vytvořit čistý a klidný vnitřní prostor v rámci složité uzavřené struktury.
Ačkoli původním plánem bylo vytvořit moderní budovu, která by byla v ostrém kontrastu s okolními stavbami, místní úřad požadoval začlenění architektonických prvků ve stylu Hui, aby byl zachován starobylý styl a rysy vesnice Bishan. Namísto pouhé repliky tradiční budovy ve stylu Hui, která neodpovídá současnému životnímu stylu, jsme si představovali budovu, která zdědí duchovní jádro architektury ve stylu Hui a integruje tradiční architektonické prvky s moderními formami a životním stylem.
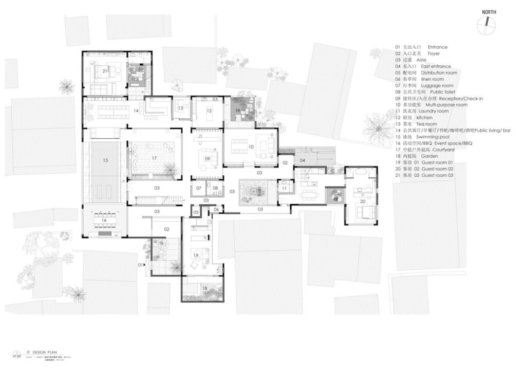
Strategie návrhu zůstala z větší části nezměněna. Vycházeli jsme z předpokladu uspokojivé funkčnosti, zachovali jsme staletý strom a starobylou studnu, do každého bloku budovy jsme začlenili nádvoří a terasy a do prostor mezi bloky jsme vložili dvorky. Tento přístup nabídl nejen bohatý vizuální zážitek v interiéru, ale také umožnil plynulý přechod mezi vnitřkem a vnějškem budov a harmonické spojení s přírodou.
2. Dynamický vizuální zážitek
Co se týče designu cirkulace, pečlivě jsme začlenili odbočky a přechody a snažili se nabídnout různé scény s každým krokem s ohledem na rytmus prostoru, tok lidí a zážitky z návštěvy. Jak hosté procházejí prostorem, ať už se pohybují vpřed, zastavují se, jsou nahoře nebo dole, mohou se setkat s různorodými pocity a zážitky, které reagují na "prostor", "čas" a "emoce", což hostům umožňuje vnímat rozmanitost a bohatost prostoru.
Na rozdíl od běžného dispozičního řešení byly veřejný obytný prostor a recepce umístěny do středu budovy, který se rozšiřoval a vyzařoval do všech stran. Vstup vede na dooryard, poté ke stěně foyer. Následně musí hosté projít kolem bazénu, schodištěm a vnitřním dvorem, než se dostanou do recepce. Tato trasa byla navržena tak, aby si hosté cestou uspořádali myšlenky a upravili své myšlení. Krátká, ale nedefinovaná procházka má za cíl vyvolat pocit novosti, podnítit zvědavost a povzbudit k průzkumu. Vstup do takto významného prostoru po průchodu spletitými venkovskými uličkami venku vyvolává zvláštní rozjímání a vnitřní radost.
Zážitek vrcholí na střešní terase a ve vyhlídkové věži, která přechází z odlehlého a hlubokého prostoru do náhle otevřeného širokého výhledu. Z těchto vyhlídkových bodů mohou hosté sledovat vzdálené hory, pozorovat vnitřní nádvoří a dívat se dolů na střechy. Díky tomuto sledu prostorových dimenzí, vizuálních polí, rozmanitých vzdáleností a vnitřních a vnějších designových prvků se hostům nabízí dynamický vizuální zážitek.
3. Vytvářejte kulisy uvnitř a vypůjčujte si kulisy zvenčí
Naším záměrem bylo zabránit vzájemnému ovlivňování činností uvnitř budovy, prostředí a okolí a usilovat o dosažení harmonie a symbiózy mezi nimi. Abychom zajistili, že se hosté a obyvatelé okolních vesnic nebudou navzájem rušit, navrhli jsme introvertní uspořádání, které budovu izoluje od vnějšího světa.
Stěny budovy přiléhající k okolní obytné zóně jsou téměř bez oken a k vytvoření příjemných výhledů a interakce s přírodou jsou využity vnitřní dvory a terasy. V prostorech, kde jsou okna nezbytná, ale je třeba dbát na soukromí, jsme použili přístupy vizuální dislokace, jako jsou vysoká nebo nízká okna, která zachovávají soukromí a zároveň umožňují světlo a větrání. Každé okno bylo navrženo jako pohledový rám, který představuje svěží zeleň na nádvoří a hory v dálce.
Kromě toho jsme se snažili vytvořit jedinečné a příjemné výhledy z každého pokoje, aby si hosté mohli vychutnat okolní scenérii, když stojí u okna. Díky tomu, že jsme si ve vhodných chvílích vypůjčili krajinu ze vzdálených a blízkých scenérií z různých úhlů, je výsledkem designového přístupu klidná, elegantní a relaxační atmosféra.
Naším cílem bylo vytvořit zážitek z bydlení a pohostinnosti, který přesahuje pouhou funkčnost a nabízí místo, kde zažijete překvapení, zábavu, umělecké pojetí prostoru a pocity. Snažili jsme se poskytnout prostor, který lidem umožní najít čistotu ve složitosti, pocítit tradici v současné době a ponořit se do klidu uprostřed shonu a zároveň zažít "nejistotu" a "překvapení" v neměnné sféře.
4. Symbióza a znovuzrození
Dvě stě let starý strom magnólie na místě je exotický druh dovezený ze Šanghaje podnikatelem z vesnice. Stávající starobylá studna byla zachována a začleněna do budovy s cílem zachovat vzpomínky na minulost a zároveň růst s místem.
V oblasti Huangshan jsou všudypřítomné stupňovité štíty, které symbolizují architekturu ve stylu Hui. Jako architekt nejsem nakloněn začleňování historických prvků do novostaveb, protože se domnívám, že novostavby by se měly soustředit spíše na překrývání současných metod než na kopírování minulých postupů. Ceníme si kombinace modernosti a tradice, která odpovídá životu a estetice současných lidí. V důsledku toho se zaměřujeme na utváření prostoru tak, aby odpovídal moderním životním zvyklostem a estetice, používáme současný jazyk a formu, abychom propojili a zdědili dědictví a zároveň provedli některé změny a dosáhli stavu symbiózy. Cílem je harmonicky zachytit duchovní podstatu a ikonickou identitu budovy.
S ohledem na univerzálnost a kompatibilitu byly jako hlavní stavební materiál použity šedé cihly, které se snoubí s okolní tradiční zástavbou, doplněné skleněnými cihlami, které vytvářejí lehký a moderní vizuální vjem, eliminují těžkost šedých cihel a dodávají jiný vzhled a atmosféru.
5. Příběhy se mohou odehrávat ve vesmíru
Prostor splňuje nejen praktické potřeby bydlení, ale také podporuje pocit spirituality a relaxace. Prostorové vyprávění umožňuje, aby se příběhy odehrávaly, a posiluje sociální a komunikační funkce prostřednictvím scénografie a aktivit lidí. Inspirativní design podporuje interakci a komunikaci mezi lidmi a činí z něj více než jen ubytování pro dovolenou. Čajovny, knižní kavárny a restaurace byly přeměněny na otevřený a flexibilní "obývací pokoj pro komunikaci".
Hosté jsou vybízeni ke sledování filmů ve veřejném prostoru, protože v pokojích není televize, což je vede k přijetí sociálních interakcí. Kromě toho bylo navrženo vybavení, jako jsou bazény, grilovací místa, terasy a vyhlídkové věže, které podporují rozmanité sociální interakce. I když klademe důraz na společné prostory, uvědomujeme si také důležitost poskytnutí prostoru pro samotu a harmonické soužití s ostatními. Každý pokoj si zachovává relativní nezávislost a soukromí a pro chvíle klidu byl navržen tichý a odlehlý střešní skleník. Tímto způsobem může veřejný společenský prostor budovy růst jak dovnitř, tak nahoru.
6. Nechte světlo, stín a prostor prolínat se v poezii
Světlo hraje zásadní roli při utváření architektonického prostoru a vytváří vizuální efekty prostřednictvím souhry světla a stínu. Z určitého úhlu pohledu je světlo jakýmsi architektonickým materiálem. V naší architektonické praxi se zaměřujeme na vnášení a tvarování světla, abychom obohatili prostor o poezii, pocity a uměřenost vnášením světla a stínu. Naším cílem je také vyvolat pocit času a prostoru prostřednictvím měnícího se světla a stínů. Nedílnou součástí našich návrhů zůstávají dvory a terasy, které zajišťují dostatek vnitřního osvětlení strategickým oddělením stavebních bloků. Využili jsme prvky, jako jsou stěny ze skleněných cihel, střešní okna a různě tvarované mříže, které vnášejí světlo a vytvářejí rozmanitou prostorovou atmosféru. Dynamická hra světla a stínu v těchto prostorech navozuje pocit času a inspiruje k rozjímání.
O projektu
Název projektu: Yiyun - Bishan Hotel
Architektonická kancelář: y.ad studio
Lokalita: No. 8, Oucun Road, Bishan Village, Yi County, Huangshan City, Anhui, Čína.
Fotografie: SCHRAN
Hlavní architekt: Yan Yang
Architekt projektu: Wu Kejia; VI design: Yan Yang, Wu Kejia
Projekční tým: Yan Yu, Huo Zhenzhong (návrh konstrukce)
Zastavěná plocha: 1,286.25 m²
Rok návrhu: Prosinec 2020 - červen 2021
Rok dokončení: Říjen 2023
Krajinářský architekt: Wu Kejia, Zhao Siyuan
Konstrukce: Huangshan Zhaohua Decoration Design Co., Ltd.
Materiál: šedé cihly, teracové desky, laminované bambusové panely, hliníkovo-magneziovo-manganová (AMM) střešní krytina, skleněné cihly, mikro-cementový nátěr, dřevěná dýha.
Zákazník: Huangshan Yiyang Cultural Tourism Development Co., Ltd.
Ve spolupráci s Liliana Alvarez, Amazing Architectures [online] @2024. Dostupné z https://amazingarchitecture.com/hotel/yiyun-bishan-hotel-by-yad-studio


























































